Desalación
I.D.A.M. Costa del Sol (Málaga)
Órgano de contratación
Aguas de las Cuencas Mediterráneas, S.A. (ACUAMED). Proyecto de licitación.
Localización:
Fuengirola (Málaga)
Descripción de la obra:
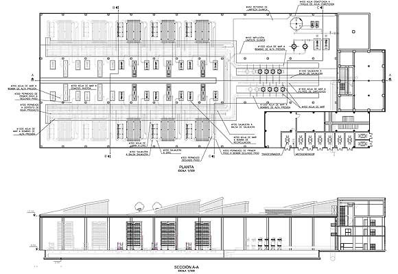
Construcción de una planta desaladora de agua de mar capaz de aportar un caudal de 60.000 m3/día (ampliable hasta 100.000 m3/día), de agua desalada y tratada para el abastecimiento a las poblaciones de la Costa del Sol (Málaga).
El Proyecto incluye los siguientes aspectos fundamentales:
- Captación abierta de agua de mar mediante cajón y bombeo en dique filtrante.
- Pretratamiento: físico-químico en línea + doble filtración cerrada en filtros bicapa, y filtración en cartuchos.
- Ósmosis: en seis líneas de proceso a través de bastidores de ósmosis inversa con capacidad de producción individual de 10.000 m3/día, incluyendo segunda etapa y recuperación de energía con recuperadores isobáricos.
- Postratamiento con aporte de CO2, Hipoclorito Sódico y remineralización mediante lechada de cal.
- Emisario de salmuera hasta conexión con emisario existente.