Desalación
I.D.A.M. Ensenada (Baja California. Méjico).
Órgano de contratación
Comisión Estatal del Agua. (CEA) Valoriza agua. Proyecto de Licitación
Localización:
Ensenada. Baja California. (Méjico)
Descripción de la obra:
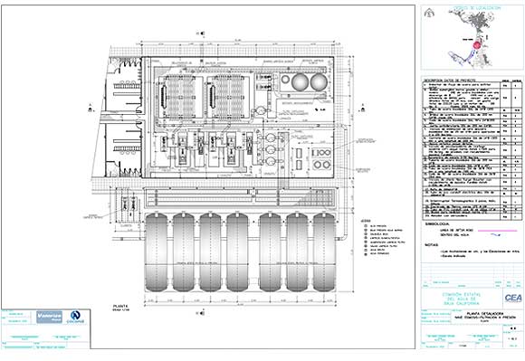
Construcción de una planta desaladora de agua de mar capaz de aportar un caudal de 21.600 m3/día de agua desalada y tratada para el abastecimiento a la población de Ensenada con el objetivo de reforzar la garantía al abastecimiento.
El Proyecto incluye los siguientes aspectos fundamentales:
- Captación abierta de agua de mar mediante torre de toma sumergida a cota batimétrica -7,00 m e inmisario DN900 a pozo de captación.
- Pretratamiento: físico-químico + clarificación mediante flotación tipo DAF, filtración cerrada en filtros bicapa y filtración en cartuchos.
- Proceso de ósmosis en tres líneas de proceso a través de bastidores de ósmosis inversa con capacidad de producción individual de 8.000 m3/día, incluyendo segunda etapa y recuperación de energía con recuperadores isobáricos.
- Postratamiento con aporte de CO2, Hipoclorito Sódico y remineralización a través de lechada de cal.
- Instalaciones complementarias: tratamiento de los fangos producidos mediante flotación y deshidratación para posterior retirada.
- Emisario de salmuera DN600 a cota batimétrica -10 m.