Serbaikal Ingenieros S.L.L. Ingeniería Hidráulica, Tratamiento de aguas y Medio Ambiente

Depuración

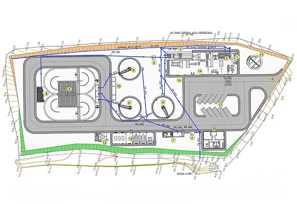
EDAR de Valmojado (Toledo)

Órgano de contratación

Empresa Constructora. DRAGADOS. Proyecto de licitación

Localización:

Valmojado (Toledo).

Aumentar Aumentar Aumentar Aumentar
Depuración: EDAR de Valdemojado (Toledo)

Descripción de la obra:

Red de Colectores/emisarios y Estación depuradora de aguas residuales de Valmojado prevista para dar servicio a una población equivalente de 15.000 habitantes.

Alcance de los trabajos: