Depuración
EDAR de Lecrín. Agrupación nº 1 (Granada)
Órgano de contratación
EGMASA. Agencia Andaluza del Agua
Localización:
Lecrín (Granada)
Descripción de la obra:
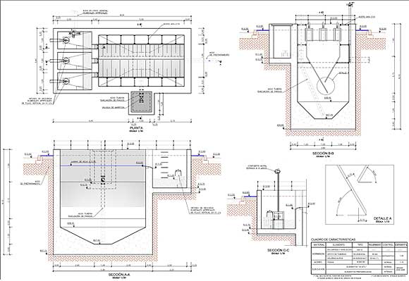
Proyecto de agrupación de vertidos y anteproyecto de la EDAR de Lecrín (Granada) proyecto nº 1: Anteproyecto de las EDARs resultantes en Lecrín (Granada). (3 uds).
Alcance de los trabajos:
- Anteproyecto de las EDARs resultantes de la Ampliación de las infraestructuras de saneamiento de las localidades de Lecrín (Mondújar, Talará, Acequias, Murchas, Chite y Béznar). Agrupación nº 1.- (900 habitantes equivalentes).
- Línea de proceso: Pretratamiento + Tanque Imhoff + Humedales artificiales de flujo vertical en paralelo + Humedal artificial de flujo horizontal en serie.