Serbaikal Ingenieros S.L.L. Ingeniería Hidráulica, Tratamiento de aguas y Medio Ambiente

Diseño, cálculo y optimización de redes de tuberías a presión

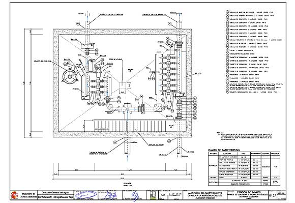
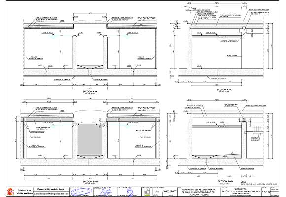
Ampliación abastecimiento de agua a la Mancomunidad del Algodor

Órgano de contratación:

Confederación Hidrográfica del Tajo.

Localización:

Varios TT.MM. (Toledo).

Aumentar Aumentar Aumentar Aumentar
Diseño, cálculo y optimización de redes de tuberías a presión

Descripción de la obra:

Alcance de los trabajos: